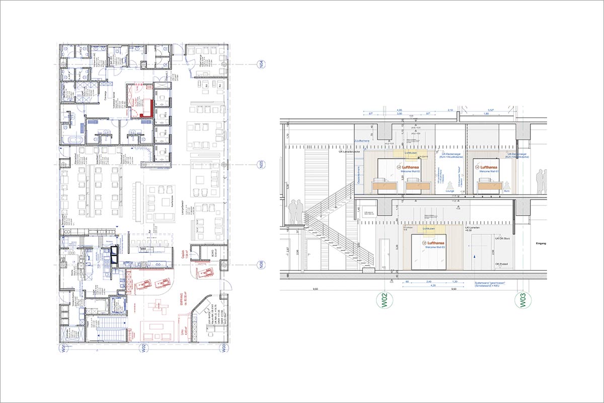
- Umbau Empfang First Class Lounge Lufthansa Flughafen München
- Satellit Terminal II
- Entwurf und Ausführungsplanung mit Ausschreibung und Objektüberwachung
Optimierung des Empfangsbereichs der Lounge und Umverlegung der Ruheräume, Gestaltung im CI der Lufthansa.
